
Общая площадь 183,9
м2
Площадь дома 154,4 м2
Площадь застройки 151,5 м2
Кубатура 728,9 м3
Угол наклона крыши 20°
Высота дома в коньке 8,18 м
Высота помещений первого этажа
2,70 м
Высота этажа 2,50 м
Гараж/навес (стояночные места)
1
Количество комнат (с гостиной)
5
Минимальные размеры участка 21,1 x 22,1 м
Необходимые размеры участка 21,1 x 22
План первого этажа

| 1. тамбур/прихожая |
3,3 м2 |
| 2. холл |
11,4 м2 |
| 3. кладовая |
4,1 м2 |
| 4. кухня |
9,7 м2 |
| 5. гостиная |
34,0 м2 |
| 6. коридор |
4,1 м2 |
| 7. спальня |
12,4 м2 |
| 8. котельная |
5,2 м2 |
| 9. ванная |
3,4 м2 |
| Всего |
87,6 м2 |
| 10. гараж |
22,3 м2 |
| 11. террасa |
12,7 м2 |
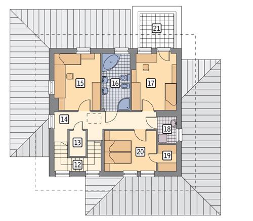
План второго этажа

| 12. лестница |
5,5 м2 |
| 13. гардеробная |
2,1 м2 |
| 14. холл |
10,4 м2 |
| 15. спальня |
13,0 м2 |
| 16. ванная |
7,9 м2 |
| 17. спальня |
12,5 м2 |
| 18. прачечная |
2,4 м2 |
| 19. гардеробная |
2,4 м2 |
| 20. спальня |
10,6 м2 |
| Всего |
66,8 м2 |
| 21. террасa |
7,2 м2 |
информация из каталога Муратор-Украина